ДОМА ИЗ БРЕВНА
Срубы в русских традициях качества
ДОМА ИЗ БРЕВНА
Только северный лес
ДОМА ИЗ БРЕВНА
Срубы в русских традициях качества



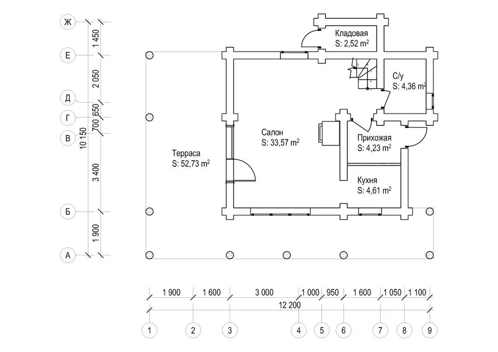
Уютный и функциональный дом, где есть все необходимое. Дом представляет собой сруб из бревна камерной сушки из северного леса. Свайный фундамент + сруб - 3 900 000. Под ключ - 5 900 000. Срок реализации проекта не менее 3х месяцев, с учетом доставки и монтажа.






Уютный и функциональный дом, где есть все необходимое. Дом представляет собой сруб из бревна камерной сушки из северного леса. Свайный фундамент + сруб - 5 400 000. Под ключ - 7 900 000. Срок реализации проекта не менее 3х месяцев, с учетом доставки и монтажа.



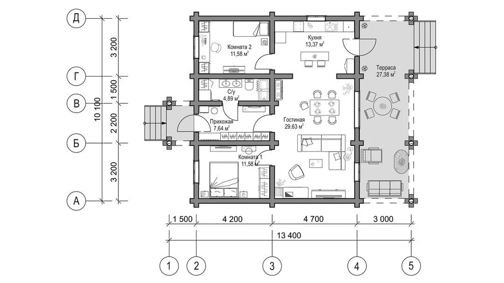
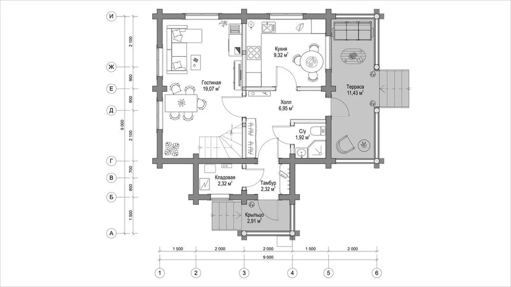
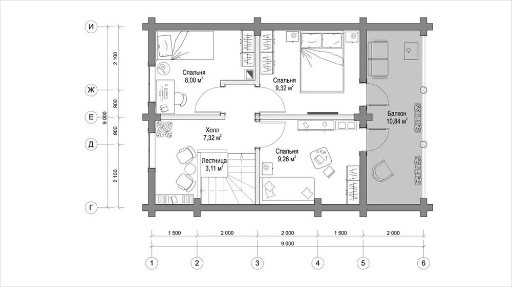
Большой и удобный дом, где есть 3 спальни, 2 с/у и отдельная котельная. Дом представляет собой сруб из бревна камерной сушки из северного леса. Свайный фундамент + сруб - 6 900 000. Под ключ - 9 900 000. Срок реализации проекта не менее 3х месяцев, с учетом доставки и монтажа.





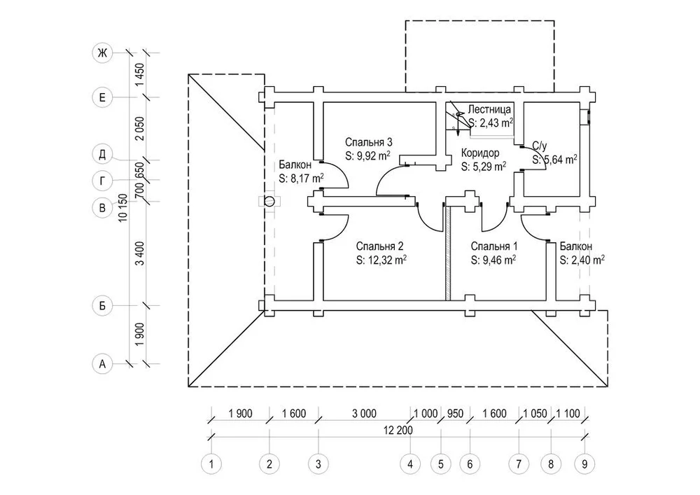
Большой и просторный дом, где есть 3 спальни, 2 с/у и отдельная котельная. Дом представляет собой сруб из бревна камерной сушки из северного леса. Свайный фундамент + сруб - 9 900 000. Под ключ - 13 900 000. Срок реализации проекта не менее 3х месяцев, с учетом доставки и монтажа.






Большой и просторный дом, где есть 3 спальни, с/у. Дом представляет собой сруб из бревна камерной сушки из северного леса. Свайный фундамент + сруб - 5 600 000. Под ключ - 8 900 000. Срок реализации проекта не менее 3х месяцев, с учетом доставки и монтажа.




Большой и просторный дом, где есть 2 спальни, с/у. и парную! Дом представляет собой сруб из бревна камерной сушки из северного леса. Свайный фундамент + сруб - 6 600 000. Под ключ - 10 400 000. Срок реализации проекта не менее 3х месяцев, с учетом доставки и монтажа.








Большой и просторный дом, где есть 3 спальни, 2 с/у Дом представляет собой сруб из бревна камерной сушки из северного леса. Свайный фундамент + сруб - 7 900 000. Под ключ - 12 900 000. Срок реализации проекта не менее 3х месяцев, с учетом доставки и монтажа.



Большой и просторный дом, где есть 3 спальни, 2 с/у Дом представляет собой сруб из бревна камерной сушки из северного леса. Свайный фундамент + сруб - 12 900 000. Под ключ - 19 900 000. Срок реализации проекта не менее 3х месяцев, с учетом доставки и монтажа.




















